Помещение Котовского
65 000 $
ПОКАЗАТЕЛЬ |
ЗНАЧЕНИЕ |
| Тип объекта | Помещения |
| Место | Одесса, Котовского |
| Улица | Академика Заболотного |
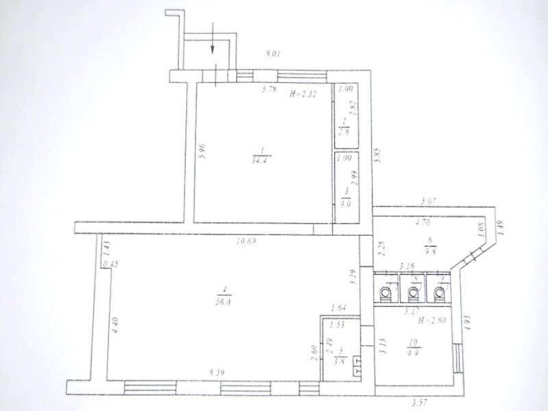
| Общая | 123.00 м² |
| Этаж | 1 |
| Этажность | 5 |
| Потолки | 2.70 м |
| Материал | блочный |
| Состояние | ремонт не требуется |
| Электричество | 380 В, 20 кВт |
| Вода | водопровод |
| Канализация | городская |
| Цена |
2 860 000.00 ₴ 65 000.00 $ 56 439.00 € |
| Цена м² | 528.46 $ |
Подробности Код 234855
Коммерческое помещение свободного назначения, расположенное в оживлённом квартале посёлка Котовского. Район отличается высокой плотностью населения, что обеспечивает стабильный пешеходный поток и благоприятные условия для ведения бизнеса.
Объект расположен во втором ряду домов, что создаёт комфортную деловую атмосферу и подходит для различных форматов коммерческой деятельности.
Основные характеристики объекта
- нежилой фонд;
- общая площадь – 123 кв.м;
- два зала: 56 кв.м и 34,4 кв.м;
- две входные группы;
- летняя площадка;
- два санузла;
- помещение в хорошем рабочем состоянии;
- ранее объект функционировал как кафе.
Коммуникации
- электроснабжение – 380 В, мощность 20 кВт;
- центральный водопровод;
- городская канализация.
Преимущества объекта
- расположение в густонаселённом жилом массиве;
- стабильный пешеходный поток;
- наличие двух отдельных входных групп;
- возможность разделения помещения на два автономных блока;
- перспектива получения арендного дохода от двух арендаторов;
- универсальный формат помещения.
Возможные варианты использования
- магазин у дома;
- интернет-магазин / пункт выдачи заказов;
- кафе или кофейня;
- салон красоты;
- учебный или детский центр;
- сервисный центр;
- языковые курсы;
- мастерская;
- офис или студия услуг.
Объект представляет собой универсальное коммерческое пространство с хорошим потенциалом для ведения бизнеса или получения стабильного инвестиционного дохода.
Свяжитесь с нами для организации просмотра.



















