Комплекс Пересыпь
ПОКАЗАТЕЛЬ |
ЗНАЧЕНИЕ |
| Тип объекта | Производственные помещения |
| Место | Одесса, Пересыпь |
| Улица | Атамана Чепиги |
| Общая | 1 356.10 м² |
| Этажность | 1 |
| Потолки | 6.00 м |
| Материал | смешанный |
| Состояние | рабочее состояние |
| Электричество | 380 В |
| Вода | водопровод |
| Канализация | городская |
| Цена |
30 510 000.00 ₴ 678 000.00 $ 590 624.00 € |
| Цена м² | 499.96 $ |
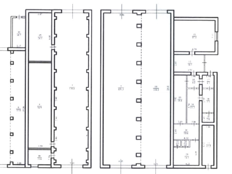
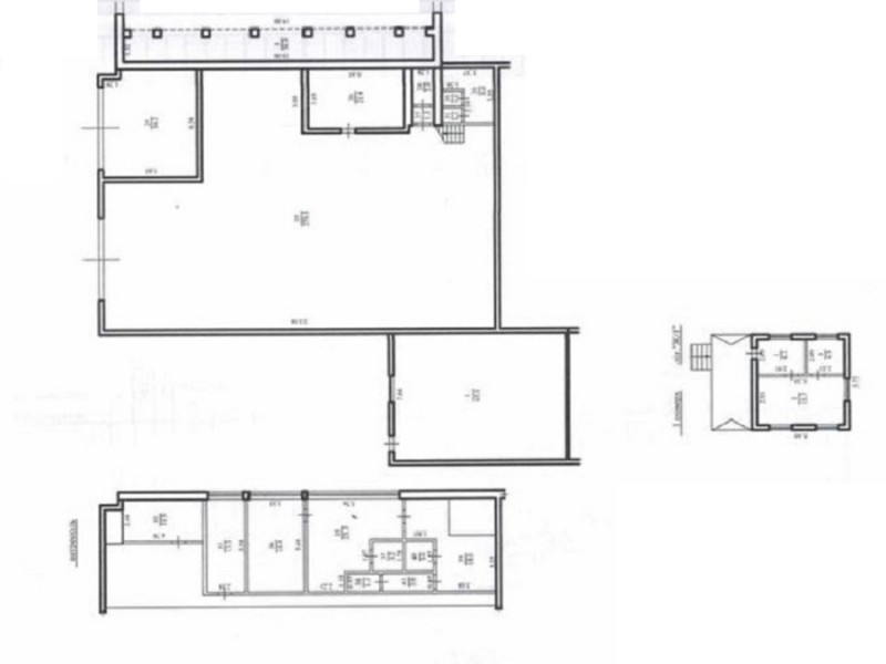
Подробности Код 389509
Производственно-складской комплекс на Пересыпи. Объект расположен на охраняемой территории крупного предприятия с организованным общим въездом, что обеспечивает контроль доступа и удобную логистику.
Общая площадь помещений составляет 1 356,1 кв.м. Формат объекта включает производственные цеха и ремонтные боксы. На сегодняшний день помещения используются как ремонтная база для грузового транспорта, что подтверждает их функциональность и пригодность для интенсивной эксплуатации.
Все помещения находятся в рабочем эксплуатационном состоянии и не требуют дополнительных вложений на старте.
Подключены все необходимые коммуникации: электроэнергия 380 В, водоснабжение и канализация.
Объект располагает собственной прилегающей территорией и удобными подъездными путями, предусмотрена возможность заезда и маневрирования большегрузного транспорта.
Преимущества объекта:
- Пересыпский район – промышленная зона.
- Охраняемая территория предприятия.
- Производственно-складской формат.
- Все коммуникации подключены.
- Готовность к эксплуатации.
Подходит для использования:
- производство;
- складская база;
- СТО и ремонтная база;
- логистический объект;
- индустриальный бизнес.
Функциональный промышленный объект для бизнеса, ориентированного на производство, обслуживание техники и складскую деятельность в логистически удобной части Одессы.
Свяжитесь с нами для уточнения деталей и организации просмотра.



























