Производственные помещения Приморский район
50 940 грн./мес.
ПОКАЗАТЕЛЬ |
ЗНАЧЕНИЕ |
| Тип объекта | Производственные помещения |
| Место | Одесса, Приморский район |
| Улица | Водопроводная |
| Ориентир | Ж/Д Вокзал |
| Общая | 849.00 м² |
| Этаж | 2 |
| Этажность | 4 |
| Потолки | 6.00 м |
| Материал | смешанный |
| Состояние | рабочее состояние |
| Электричество | 380 В |
| Вода | водопровод |
| Канализация | городская |
| Цена за месяц |
50 940.00 ₴ 1 151.00 $ 992.00 € |
| Цена м² | 1.36 $/мес. |
Подробности Код 395898
Производственно-складские помещения в районе Ж/Д Вокзала. Удобная локация обеспечивает отличную автомобильную и пешеходную доступность, а также быструю связь с основными транспортными магистралями города.
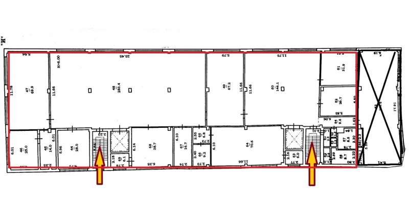
Основные характеристики объекта
- расположение – 2 этаж 4-этажного производственного здания;
- общая площадь – 849 кв.м;
- высота потолков – 6 м;
- здание колонного типа (шаг колонн 6 × 6 м);
- грузовой лифт грузоподъемностью до 2 тонн;
- электроснабжение 380 В;
- центральный водопровод и городская канализация.
Планировка основных помещений
- 283,4 кв.м;
- 146,1 кв.м;
- 70,6 кв.м;
- 69,9 кв.м;
- 67,2 кв.м;
- вспомогательные и подсобные помещения – от 20 до 40 кв.м.
Внутренние перегородки не несущие, что позволяет объединить помещения в единое пространство или выполнить перепланировку под задачи вашего бизнеса.
Преимущества объекта
- светлые помещения с большими окнами;
- состояние под косметический ремонт без значительных капиталовложений;
- небольшая прилегающая территория перед зданием;
- возможность использования территории под разгрузочно-складскую площадку или парковку;
- хорошая транспортная развязка.
Оптимально подходит для производства, склада, мастерских, сборочного цеха.
Арендная ставка: 60 грн./м².
Свяжитесь с нами для организации просмотра.
Похожие предложения
Пересыпский район
Балтская дорога
206 м² • 1-й этаж • 1-этажное
18 000 грн./мес.




















