Коммерческий комплекс Холодная балка
230 000 $
ПОКАЗАТЕЛЬ |
ЗНАЧЕНИЕ |
| Тип объекта | Производственные помещения |
| Место | Холодная балка |
| Улица | Киевское шоссе |
| Общая | 1 158.80 м² |
| Участок | 10 500.00 м² |
| Этажность | 1 |
| Материал | смешанный |
| Состояние | рабочее состояние |
| Электричество | 380 В |
| Вода | водопровод |
| Канализация | городская |
| Цена |
10 120 000.00 ₴ 230 000.00 $ 194 792.00 € |
| Цена м² | 198.48 $ |
Подробности Код 396002
Действующий коммерческий комплекс, ранее использовавшийся как АТП, расположенный в выгодной локации – вблизи интенсивного транспортного потока по Киевской трассе, всего 10 км от Клеверного моста.
Быстрый выезд на магистраль государственного значения обеспечивает удобную логистику и стабильный коммерческий спрос.
Ключевые преимущества
- частная собственность на земельный участок и все строения;
- общая площадь территории – 1,05 га (ограждена, твердое покрытие);
- общая площадь капитальных строений – 1158,8 кв.м;
- полный пакет коммуникаций (380 В, центральный водопровод, городская канализация);
- асфальтированные подъездные пути;
- рабочее состояние зданий – возможность немедленного запуска деятельности.
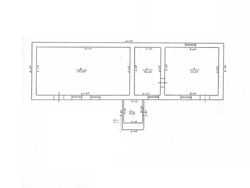
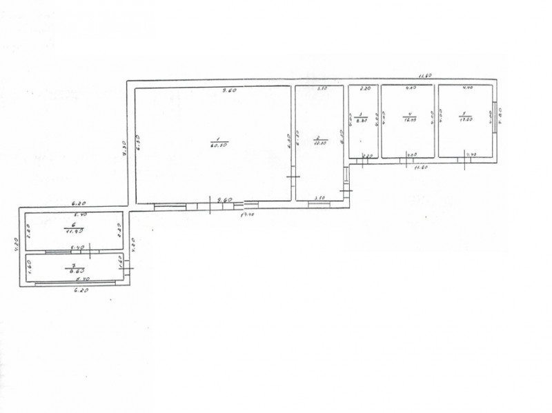
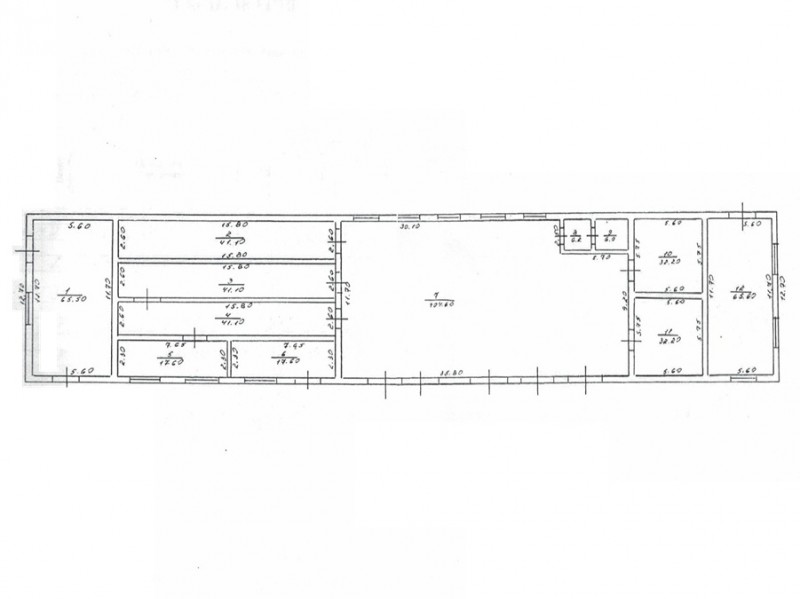
Состав комплекса
- 136,4 кв.м – здание гаража с боксами;
- 145,4 кв.м – складское помещение;
- 770,8 кв.м – гараж на 80 автомобилей;
- 106,2 кв.м – офисная часть с подсобными помещениями.
Оптимально подходит для
- автотранспортного предприятия (АТП);
- СТО или сервисного центра грузового транспорта;
- логистической базы, распределительного центра;
- производственно-складского комплекса;
- арендного бизнеса (разделение на отдельные блоки и сдача в аренду).
Дополнительные возможности
- размещение открытых складских зон;
- организация стоянки техники;
- расширение существующей застройки.
Свяжитесь с нами для организации просмотра!


























