Складской комплекс Хаджибейский район
1 100 000 $
ПОКАЗАТЕЛЬ |
ЗНАЧЕНИЕ |
| Тип объекта | Склады |
| Место | Одесса, Хаджибейский район |
| Улица | Промышленная |
| Общая | 2 460.30 м² |
| Участок | 15 800.00 м² |
| Этажность | 1 |
| Потолки | 6.00 м |
| Материал | смешанный |
| Состояние | рабочее состояние |
| Электричество | 380 В, 100 кВт |
| Газ | природный |
| Вода | водопровод |
| Канализация | городская |
| Цена |
48 400 000.00 ₴ 1 100 000.00 $ 951 105.00 € |
| Цена м² | 447.10 $ |
Подробности Код 77656
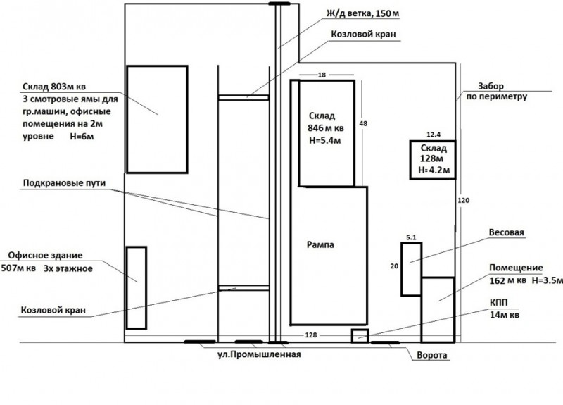
Функциональный складской комплекс, расположенный в промышленной зоне Хаджибейского района. Объект идеально подходит для логистики, производства, хранения и комплексного ведения бизнеса.
Основные характеристики
- общая площадь территории – 1,58 га;
- территория ограждена, с твердым покрытием;
- два независимых въезда/выезда для удобной логистики;
- общая площадь строений – 2460,3 кв.м.
Состав комплекса
- офисное здание – 2 этажа;
- складские помещения с высотой потолков от 4,2 м до 6 м;
- ж/д рампа и авто-рампа;
- подкрановая площадка;
- 2 козловых крана грузоподъемностью до 12 тонн каждый;
- автовесовая до 30 тонн;
- собственная ж/д ветка (150 м);
- подсобные и бытовые помещения.
Коммуникации
- электроснабжение: 380 В, мощность 100 кВт;
- природный газ;
- центральный водопровод;
- городская канализация.
Преимущества объекта
- удобное расположение в промышленной зоне с хорошей транспортной доступностью;
- полностью готовая инфраструктура для ведения бизнеса;
- возможность одновременной работы с авто- и железнодорожной логистикой;
- оптимальная конфигурация территории для крупногабаритного транспорта.
Варианты использования
- логистический и распределительный центр;
- складской комплекс для хранения товаров различного назначения;
- производственная база или перерабатывающее предприятие;
- металлобаза, строительная база;
- транспортное предприятие или база спецтехники;
- комплекс с мультимодальной логистикой (авто + ж/д).
Объект сочетает в себе выгодное местоположение, развитую инфраструктуру и широкие возможности для масштабирования бизнеса. Отличное решение как для собственного использования, так и для инвестиционных целей.
Свяжитесь с нами для организации просмотра.































