Помещение Таирова
136 000 $
ПОКАЗАТЕЛЬ |
ЗНАЧЕНИЕ |
| Тип объекта | Помещения |
| Место | Одесса, Таирова |
| Улица | Академика Вильямса |
| Ориентир | Академика Королева |
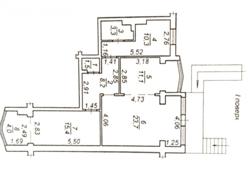
| Общая | 77.50 м² |
| Этаж | 1 |
| Этажность | 12 |
| Потолки | 2.80 м |
| Материал | панель |
| Состояние | ремонт не требуется |
| Электричество | 380 В, 16 кВт |
| Газ | природный |
| Отопление | автономное |
| Вода | водопровод |
| Канализация | городская |
| Цена |
5 984 000.00 ₴ 136 000.00 $ 115 568.00 € |
| Цена м² | 1 754.84 $ |
Подробности Код 154054
Фасадное коммерческое помещение в одном из самых активных и густонаселённых районов города – Киевский район, ж/м Таирова. Объект расположен на фасаде, имеет отличную визуальную доступность и удобный подъезд.
Основные характеристики
- нежилой фонд;
- общая площадь – 77,5 кв.м;
- ширина фасада – 10 м (широкие рекламные возможности);
- функциональная планировка;
- качественный современный ремонт;
- в каждой комнате установлены умывальники.
Технические параметры и коммуникации
- электроснабжение – 380 В, 16 кВт;
- центральный водопровод;
- городская канализация.
Преимущества объекта
- фасадное расположение – высокий пешеходный и автомобильный трафик;
- широкий фасад – возможность размещения вывески и наружной рекламы;
- помещение не требует дополнительных вложений;
- подведены все необходимые коммуникации;
- ранее успешно функционировал как медицинский центр.
Возможные форматы использования
- магазин или шоурум;
- салон красоты или студия услуг;
- офис компании;
- аптека;
- учебный центр;
- медицинские услуги;
- сервисный центр или мастерская;
- другие виды коммерческой деятельности.
Инвестиционная привлекательность
Помещение универсально по своему назначению и отлично подойдёт как для собственного бизнеса, так и для инвестиции с целью дальнейшей сдачи в аренду. Готовый объект с качественным ремонтом в востребованной локации – выгодное предложение на рынке коммерческой недвижимости.
Свяжитесь с нами для уточнения деталей и организации просмотра.

















