Гостинично-ресторанный комплекс Одесская область
ПОКАЗАТЕЛЬ |
ЗНАЧЕНИЕ |
| Тип объекта | Базы отдыха |
| Место | Одесская область |
| Улица | Трасса Е95 46-й км |
| Общая | 2 934.50 м² |
| Участок | 10 056.00 м² |
| Этажность | 2 |
| Потолки | 3.00 м |
| Материал | смешанный |
| Состояние | рабочее состояние |
| Электричество | 380 В, 100 кВт |
| Газ | природный |
| Вода | артезианская скважина |
| Канализация | гор.канализация |
| Цена |
15 000 000.00 ₴ 354 862.00 $ 308 008.00 € |
| Цена м² | 120.93 $ |
Подробности Код 387630
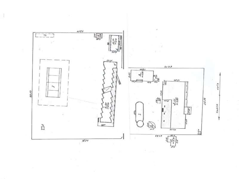
Доходный гостинично-ресторанный комплекс на 46-м км трассы Одесса–Киев. Объект находится в 20 минутах от города.
Общая площадь построек 2934,5 кв.м. Земельный участок 1,0056 га в частной собственности. Комплекс включает:
- ресторан 770,5 кв.м с двумя банкетными залами на 120 персон;
- отель на 22 номера площадью 1107 кв.м.;
- конференц-зал на 150 персон;
- админкорпус 170,4 кв.м.;
- сауну 175 кв.м.;
- бассейн длиной 24 м;
- теннисный корт;
- зоны отдыха и барбекю.
В номерах установлена система кондиционирования, зимний обогрев, интернет, телевидение. Инженерные системы включают артезианскую скважину, биоочистные сооружения, автономное электроснабжение, водоснабжение и газоснабжение. Электрическая мощность: активная 110 кВт, реактивная 88 кВт. Отопление обеспечивают три котла на пеллетах. Водоснабжение из скважины глубиной до 100 м с системой доочистки. Канализация оснащена двухуровневой очисткой.
Комплекс не работает, с 01.07.2025 находится под круглосуточной охраной. Все строения в хорошем состоянии и готовы к эксплуатации как ресторанно-гостиничный объект. Подходит для инвестора, который рассматривает покупку готового бизнеса с возможностью запуска в короткий срок.
Выгоды покупки:
- Большая территория и полный набор зданий для комплексного сервиса.
- Автономные инженерные системы с высокой мощностью.
- Рабочее состояние без необходимости капитальных вложений.
- Расположение рядом с Одессой на трассе с высоким трафиком.
Подходит для:
- Гостинично-ресторанного бизнеса.
- Медицинского или реабилитационного центра.
- Частного пансионата.
- Оздоровительного или спортивного комплекса.
























