Предприятие Одесская область
ПОКАЗАТЕЛЬ |
ЗНАЧЕНИЕ |
| Тип объекта | Производственные помещения |
| Место | Одесская область |
| Улица | Саврань |
| Общая | 1 802.90 м² |
| Участок | 8 100.00 м² |
| Этажность | 1 |
| Потолки | 5.00 м |
| Материал | смешанный |
| Состояние | рабочее состояние |
| Электричество | 380 В, 150 кВт |
| Вода | Артезианская скважина |
| Канализация | Выгребная яма |
| Цена |
13 500 000.00 ₴ 300 000.00 $ 258 679.00 € |
| Цена м² | 166.40 $ |
Подробности Код 387642
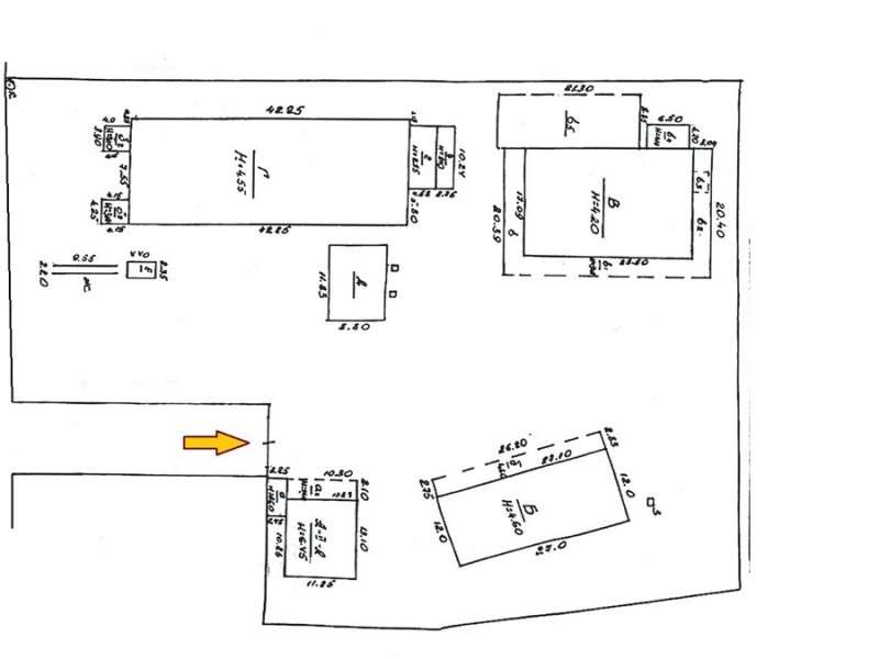
Целостный имущественный комплекс в п. Саврань, в 217 км от Одессы. Объект расположен рядом с границей Одесской и Николаевской областей и выделяется удобной логистикой.
Территория площадью 0,81 га ограждена по периметру и имеет широкий въезд для грузового транспорта с прямым выездом на весы.
Общая площадь строений составляет 1802,9 кв.м. Здания размещены по периметру территории, что обеспечивает свободное пространство для маневров фур. Комплекс ранее работал как хлебоприемный пункт и зерновой терминал.
На территории расположены производственные и складские помещения разных площадей, административное здание, новая автомобильная весовая длиной 24 м, рассчитанная на нагрузку до 80 тонн, и площадка с завальной ямой объемом 25 тонн.
Для работы комплекса предусмотрены загрузочные и очистительные машины, сушка на 25 т, мельница, зерномет и другое оборудование. Перечень оборудования предоставляется по запросу.
Все здания находятся в рабочем состоянии.
Объект подключен к электричеству 380 В, имеет собственную трансформаторную подстанцию мощностью 150 кВт, водоснабжение от артезианской скважины и выгребную яму.
Выгоды покупки:
- Готовая инфраструктура под зерновой терминал.
- Свободная территория для маневров грузового транспорта.
- Наличие современной весовой и производственного оборудования.
- Собственная ТП 150 кВт для стабильной работы.
Подходит для:
- Аграрного бизнеса и зернопереработки.
- Производственно-складской деятельности.
- Логистического хаба или распределительного центра.
- Размещения промышленного предприятия.






















