Здание Таирова
ПОКАЗАТЕЛЬ |
ЗНАЧЕНИЕ |
| Тип объекта | Производственные помещения |
| Место | Одесса, Таирова |
| Улица | Академика Вильямса |
| Ориентир | Ильфа и Петрова |
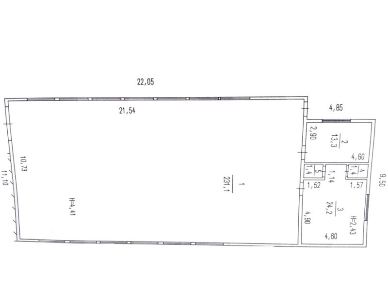
| Общая | 242.00 м² |
| Этажность | 1 |
| Потолки | 4.41 м |
| Материал | смешанный |
| Состояние | рабочее состояние |
| Электричество | 380В, 20 кВт |
| Вода | Артезианская скважина |
| Канализация | городская |
| Цена за месяц |
30 000.00 ₴ 698.00 $ 588.00 € |
| Цена м² | 2.88 $/мес. |
Подробности Код 393321
Отдельно стоящее здание свободного назначения на Таирова. Локация удобна для производственной и коммерческой деятельности с быстрым выездом на основные транспортные артерии района.
Общая площадь здания составляет 242 кв.м. Основное рабочее помещение площадью 231,1 кв.м имеет правильную прямоугольную форму 10,73×21,54 м. Высота потолков 4,41 м позволяет размещать оборудование, технику и складские стеллажи. Пол выполнен из прочной бетонной стяжки.
Установлены въездные ворота шириной 3 м, что удобно для заезда транспорта. В здании смонтирован тельфер, который требует профилактического обслуживания.
Дополнительно предусмотрены кабинет, бытовое помещение, санузел и душевая, что обеспечивает комфортные условия для персонала.
Коммуникации подключены: электроснабжение 380В с выделенной мощностью 20 кВт, городская канализация, артезианская скважина.
Здание находится в хорошем рабочем состоянии и готово к эксплуатации без капитальных вложений.
Преимущества объекта:
- Отдельно стоящее здание.
- Высота потолков 4,41 м.
- Ворота для заезда транспорта.
- Наличие бытовых помещений.
- Коммуникации подключены.
Подходит для использования:
- СТО и автосервис;
- ремонтные мастерские;
- небольшой производственный цех;
- склад;
- коммерческая деятельность свободного назначения.
Практичное решение для бизнеса, которому требуется автономное здание с высотой, мощностью и готовой инфраструктурой в Киевском районе Одессы.
Свяжитесь с нами для организации просмотра объекта.
Здание на Вильямса
Похожие предложения
Хаджибейский район
Агрономическая
190 м² • 1-й этаж • 1-этажное
22 872 грн./мес.
Пересыпский район
Николаевская дорога
300 м² • 1-й этаж • 1-этажное
30 000 грн./мес.
















