Здания Центр
ПОКАЗАТЕЛЬ |
ЗНАЧЕНИЕ |
| Тип объекта | Здания |
| Место | Одесса, Центр |
| Улица | Южная |
| Общая | 912.50 м² |
| Участок | 950.00 м² |
| Этаж | 1-2 |
| Этажность | 2 |
| Потолки | 3.00 м |
| Материал | смешанный |
| Состояние | требуется косметический ремонт |
| Электричество | 380 В, 70 кВт |
| Вода | водопровод |
| Канализация | городская |
| Цена |
24 200 000.00 ₴ 550 000.00 $ 466 783.00 € |
| Цена м² | 602.74 $ |
Подробности Код 396152
Коммерческий объект под развитие и реконструкцию, расположенный в центральной части города, в Приморском районе. Локация отличается удобной транспортной доступностью и развитой инфраструктурой, что делает объект привлекательным для реализации различных бизнес-проектов.
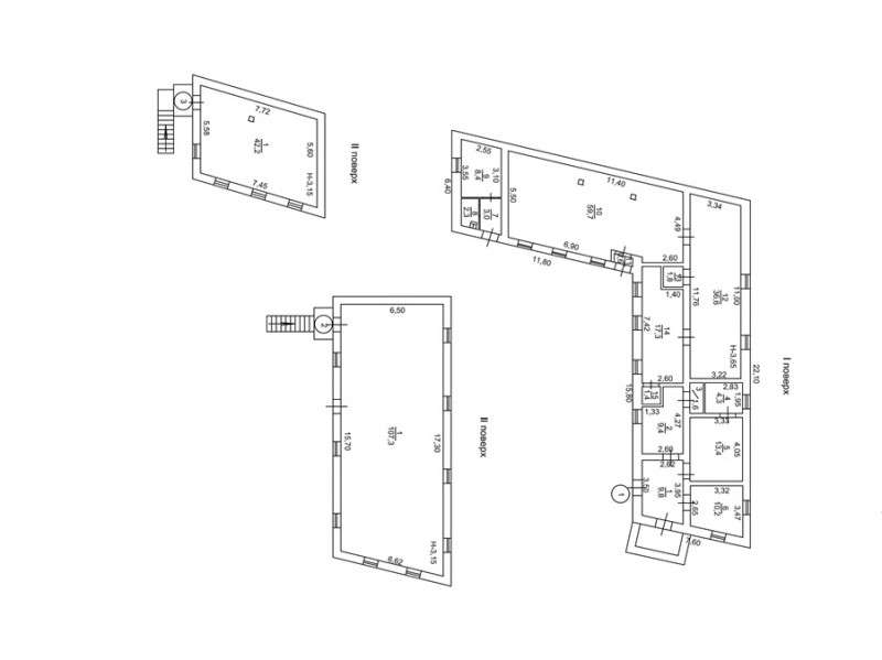
Объект расположен на ограждённой территории площадью 9,5 соток. Общая площадь строений составляет 912,5 кв.м.
Состав объекта
- двухэтажное офисное здание – 583,2 кв.м;
- склад с подсобными помещениями – 287,1 кв.м;
- гараж – 42,2 кв.м.
Все строения находятся в удовлетворительном рабочем состоянии, что позволяет использовать объект в текущем виде или реализовать проект реконструкции с учётом задач будущего владельца.
Коммуникации
На объект заведены все необходимые городские коммуникации:
- электричество 380 В, мощность 70 кВт;
- центральный водопровод;
- городская канализация.
Правовой статус
- нежилой фонд;
- земельный участок – договор аренды на 25 лет;
- все строения находятся в частной собственности.
Потенциал использования
Объект отлично подходит для реализации различных проектов:
- детский сад или образовательный центр;
- медицинский центр или клиника;
- офис компании или бизнес-центр;
- мини-отель или хостел;
- сервисный центр;
- мастерские или производственно-административный комплекс.
Благодаря центральному расположению, собственной территории и значительной площади строений, объект представляет интерес как для инвесторов, так и для компаний, планирующих развитие собственного бизнеса.
Свяжитесь с нами для организации просмотра.

















