Производственные помещения Хаджибейский район
250 000 $
ПОКАЗАТЕЛЬ |
ЗНАЧЕНИЕ |
| Тип объекта | Производственные помещения |
| Место | Одесса, Хаджибейский район |
| Улица | Дальницкая |
| Ориентир | Бугаевская |
| Общая | 683.30 м² |
| Этаж | 1-2 |
| Этажность | 2 |
| Потолки | 3.30 м |
| Состояние | рабочее состояние |
| Электричество | 380 В, 30кВт |
| Вода | водопровод |
| Канализация | городская |
| Цена |
11 000 000.00 ₴ 250 000.00 $ 213 647.00 € |
| Цена м² | 365.87 $ |
Подробности Код 76666
Функциональный коммерческий объект в Хаджибейском районе. Отличное решение для размещения собственного производства, мастерской, сервисного центра или как инвестиционный актив с возможностью сдачи в аренду. Общая площадь объекта – 683,3 кв.м. Помещения расположены в трех уровнях и полностью готовы к эксплуатации.
Планировка и характеристики объекта
- 1-й этаж – 330 кв.м
- основные производственные цеха: 134,1 кв.м и 129,1 кв.м;
- высота потолков – 3,30 м;
- светлые помещения с естественным освещением.
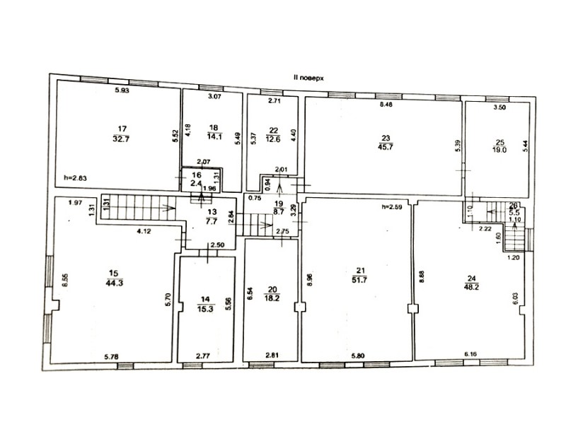
- 2-й этаж – 326,1 кв.м
- рабочие помещения: 51,7 кв.м, 48,2 кв.м, 45,7 кв.м, 44,3 кв.м, 32,7 кв.м;
- офисная часть для административного персонала;
- высота потолков – 2,6 м;
- хорошее естественное освещение.
- Подвал
- два помещения: 16,4 кв.м и 6 кв.м;
- высота потолков – 1,9 м;
- под склад, хранение или технические нужды.
Техническое оснащение
- электроэнергия – 380 В, 30 кВт;
- центральный водопровод;
- городская канализация;
- отопление 1-го этажа – твердотопливный котел;
- отопление 2-го этажа – электрокотел.
Преимущества объекта
- хорошее рабочее состояние – можно начинать деятельность без дополнительных вложений;
- рациональная планировка для производственного процесса;
- разделение на производственные и офисные зоны;
- подходит под различные виды деятельности;
- перспектива использования как инвестиционного проекта.
Объект полностью готов для организации производственного процесса и ведения бизнеса. Отличное предложение для предпринимателей, которые ценят функциональность, удобство и стратегическое расположение в промышленной части города.
Свяжитесь с нами для консультации и организации просмотра.
















